手术室层流送风天花阻尼网|网孔板|均流网|均流膜
手术室层流送风天花阻尼网|网孔板|均流网|均流膜:手术室送风天花阻尼网又称为手术室送风天花网孔板、手术室送风天花均流网、层流送风天花均流膜,主要分为四个部分组成:铝合金框架包边、300目双层阻尼网、不锈钢骨架、卡簧(均流网非广州点点游戏体育产品,更换时需要测量卡簧中心距、铝合金外框需要测量边长的端点到斜角位置距离)。
手术室送风天花制作要求选配:
1、A型箱体为冷轧钢板静电喷塑处理,冷轧钢板静电喷塑做围护及进风过滤框,含双层DPP均流网及中速气流补偿装置。
2、B型外箱体采用SUS304不锈钢制作。抗腐蚀、耐酸碱、视觉更美观、强度高,同时,保留双层DPP均流网及中速气流补偿装置。
3、手术室送风天花阻尼层均流可选用铝质网孔板、304不锈钢网孔板、冷轧钢板烤漆网孔板、双层DPP均流网。
手术室送风天花特点:
1、送风形式:层流送风天花分高效过滤器满布(平铺)送风和高效过滤器侧布(侧铺)送风两种。
2、气流状态:送风天花下部气流均匀,气流满布率≧95%,达到行业检测的相关参数要求。
3、均流模式:多块网孔板组合,出风均匀,静电粉末喷涂,和墙顶面同色,表面效果好。
4、工厂制造,现场采用标准连接件拼接组装,安装方便、简单,设备安装质量有保障。
5、维护操作:国标规格过滤器,更换快捷、方便,易维护。
6、过滤器压差密封技术:保证洁净区内无泄漏。
7、过滤器满布技术:压差低,超长使用寿命。
8、稳定的产品质量,供货周期短。
8、高分子阻尼层送风网面:低阻力,风速均匀。
9、均流度满足最新规范要求:不均匀度小于15% 。
10、变级别手术室:扩大手术室使用范围,提高手术室使用率;同时运行中节约能源 。
11、灯柱盖板小于250mm×250mm——符合最新版规范要求。
层流送风天花主要用于医院洁净手术室、洁净病房、洁净动物房等项目,这些地方都是对洁净要求比较高的。例如手术室,手术室是医院中最长的开放性医疗过程,手术过程中将患者最好的屏障——表皮或粘膜打开,使得机体的内部直接暴露在外,不同途径带入的病菌有可能轻而易举地进入机体内部,极易引起感染。因此术后感染一直是医院一种普遍的、最难以提防的、可能诱发严重后果的院内感染,百级层流洁净手术室是目前最为理想的洁净措施,层流送风天花是洁净手术室、洁净病房的净化送风末端,兼有高效过滤,均流及气流补偿作用,运用先进的空气洁净技术应用到手术室,对手术室的空气进行除菌、温湿度调节、新风调节等系列处理,使得手术室保持在洁净、温湿度适宜的状态。
层流送风天花静压箱采用电解镀锌钢板表面喷漆处理或不锈钢加工,四边采用硅胶密封,形成一个气密箱体;采用“点点游戏体育”牌HEPA过滤器采用99.999%@0.3μm过滤器,安装在静压箱内,且能从天花下面进行维修;送风天花表面采用优质纱网框,它是一种特殊系数的阻尼网层,使空气垂直地送到手术室主流区。
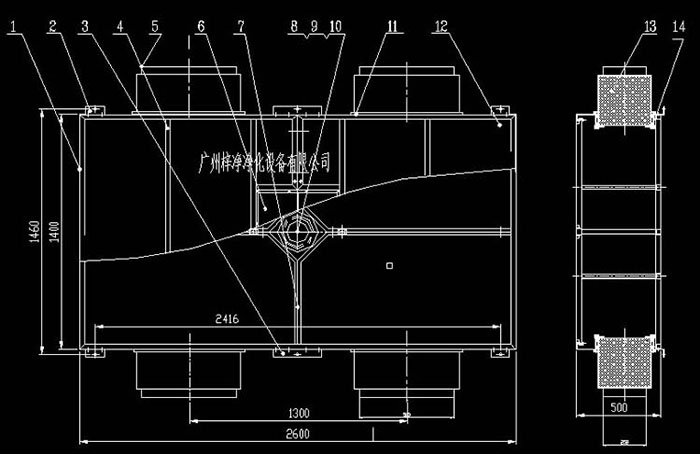
手术室层流送风天花高效过滤器有组合式高效过滤器、无隔板高效过滤器、有隔板高效过滤器三种,可根据需要选配,“点点游戏体育”牌Ⅲ级手术室送风天花W2600*D1400*H500mm一般标配4个侧铺高效过滤器(规格610*305*292mm)。
手术室层流送风天花工作原理:送风天花由高效空气消毒过滤系统、风机动力系统、消音降噪系统、操作控制系统等组成。工作时风机吸入环境空气,在经过空气净化消毒系统过滤成为洁净无菌空气,再以层流的方式将洁净空气送到罩内病床区域,同时使罩内保持正压,以阻止外部空间的尘埃粒子及微生物进入罩内。
层流送风天花分类为哪三个级别?
送风天花一般分类为百级,千级,万级这三个级别。
百级送风天花:Ⅰ型(2800*2600)
千级送风天花:Ⅱ型(1800*2600)
万级送风天花:Ⅲ型(1400*2600)

手术室层流送风天花的重要性:为什么要强调送风天花的性能及其对术后感染控制的重要性?这要从手术的特点说起,手术环境控制关键在于手术区,而手术区控制关键在于手术切口,因此需要高无菌程度控制的只是一个局部区域而非全室。因此,如何从技术措施保障手术环境控制?传统的思路就是区域控制的概念,这也是各国医院相关标准实施的控制。
随着现代医学科学技术的飞速发展,外科技术对手术室的洁净条件的要求也越来越高。

百级层流手术室是目前比较理想的。但如何有效管理,使层流手术室的空气菌落数符合卫生部颁发的空气环境卫生学标准,又符合洁净手术室等级标准,并使之减少到最低限度,国内检索文献资料较少,是目前洁净手术室管理中值得探讨的一个新的课题。层流送风天花是采用空气洁净技术对微生物污染采取程度不同的控制,达到控制空间环境中空气洁净度适于各类手术之要求;并提供适宜的温、湿度,创造一个洁净舒适的手术空间环境。
手术室送风天花阻尼网可根据用户需求定制!

